| 湯所2丁目 中古一戸建て住宅 | |||
| 物件番号 | H222 | ||
| 所在地 | 鳥取市湯所2丁目541-20 | 交 通 | 湯所バス停より徒歩8分 |
| 価 格 | 600万円 | 土地面積 | 94.44u (28.57坪) |
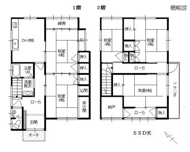
| 間取り | 5SDK | 建物面積 | 115.35u (34.89坪) |
| 地 目 | 宅地 | 駐車場 | 対象物件内 |
| 建物構造 | 瓦葺 木造 2階建 | 私道負担面積 | |
| 築年月 | 昭和45年 01月築 | 建ぺい率 | 60% |
| 取引態様 | 媒介 | 容積率 | 200% |
| 法令制限 | 準防火地域 | 現 況 | 空家 |
| 用途地域 | 一種中高層 | 引渡し | 相談 |
| 都市計画 | 都市計画区域内 線引有 市街化区域 用途地域指定有 | ||
| 設 備 | 電気 上水道 給湯 側溝 下水道 都市ガス | ||
| 接面道路 | 南西幅員4.00/m | ||
| 備 考 | S56年増築、DK流し台及び浴室ユニットバス等にリフォーム済み。 軽自1台スペース有(植栽の撤去必要) | ||
| 情報更新日 | 2026/01/08 | 更新予定日 | 随 時 |
| 外観写真 |
|
| 地 図 |
|
| 間取り図 |
|
| 室内写真 |
|